This is the INDEX page that is reserved for Weebly system use ONLY!
This page is automatically assigned by Weeby for Single Product Page, Checkout Page, and search result page
DO NOT USE THIS PAGE
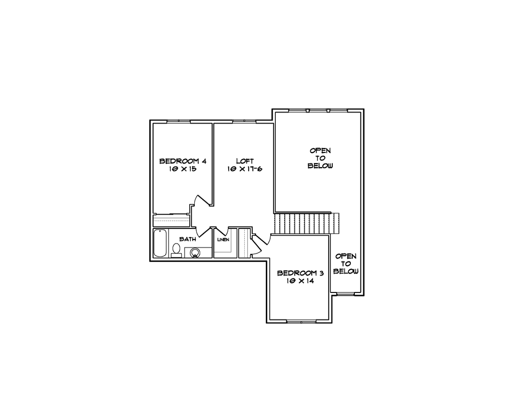
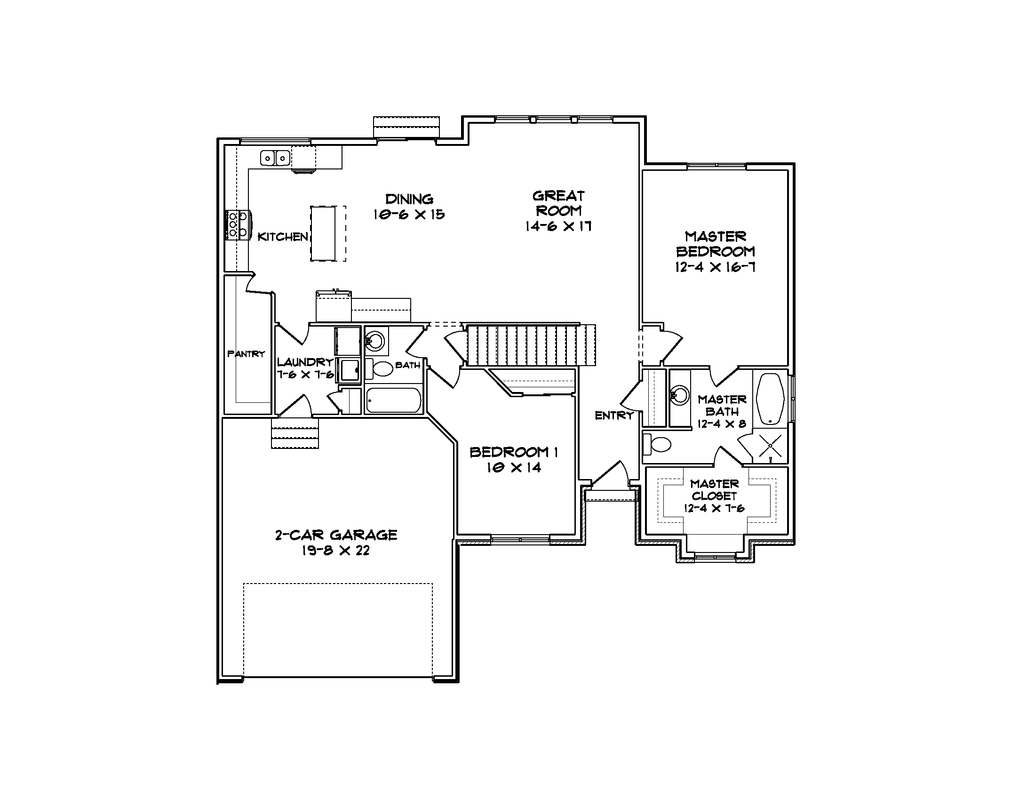
Custom 2-Story Plan with Master on The Main
This floor plan is one of Lightyear Constructions' most popular and oft chosen plans. The ability to incorporate main floor living with the bonus of separating the bedrooms from the master is a timeless choice when it comes to the selection of a layout that people feel is adequate for their needs.
For some people single level livingis the only thing they'd ever even consider! And with good reason....
Master on the Main – The Katrina Home Plan
The Katrina home plan does a fantastic job of combining living spaces for any family type.
There are many reasons why people choose single level living, but now, you don’t have to!
You can have the best of both worlds when it comes to your living situation! Tuck your children’s bedrooms neatly upstairs out of the way and enjoy your space on the main floor that much more! Combine that with the amount of natural light that this home allows, and you’ll know why it’s a best seller!
Features
· Two-story home with staircase leading upstairs and ceiling height that can is generally only achieved with a two story.
· Fantastic Master Suite on the main level.
· Suite includes a Grand Master Bath and large walk-in closet.
· Large gathering room on the main floor.
· Optional “second” bedroom on main floor with full bath near it.
· Optional office on the main floor near the front door.
· Current front elevation with a few craftsman cues in it.
Lightyear Construction will be able to offer you full 3d renderings of this home including furniture placement, paint colors, flooring options and schemes.
These are just some of the services that we are able to offer should you decide that this home could be a good one for you.